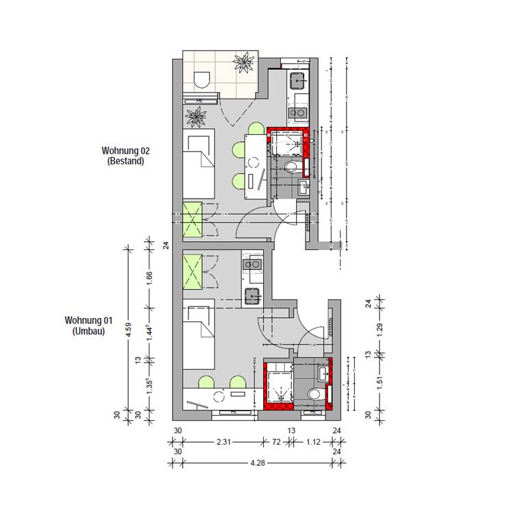
Die Sanierungsarbeiten in den Apartments einer Studentenwohnanlage in Bayreuth gehen weiter. Es werden die nächsten neuen Sanitäreinheiten installiert. Der Abriss hat schon mal begonnen …

 

(mit mausklick pläne vergrößern)

.

error: Bitte kein ungefragtes kopieren...